1415 Gerrard Street
Toronto, CA M4L 1Z5
$4,295,000















































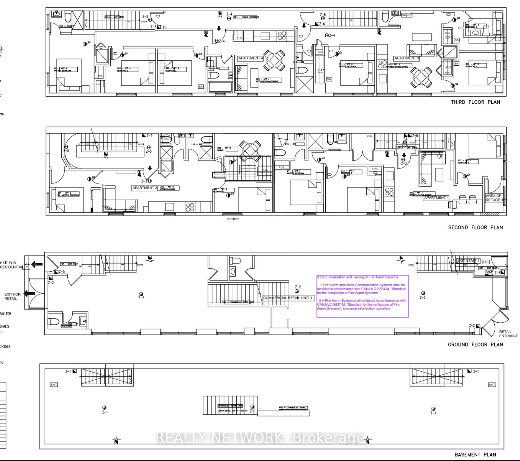
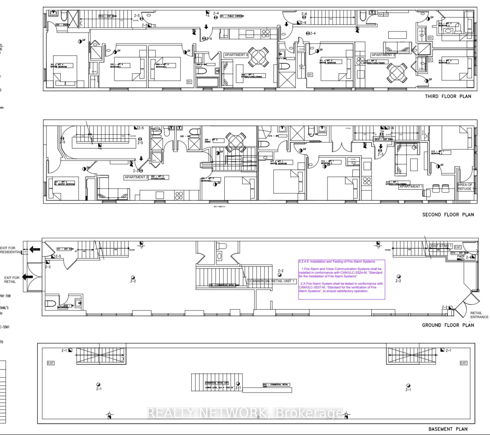
Turn-key mixed-use investment opportunity in prime downtown Toronto (1 Commercial + 5 Residential). Fully renovated building featuring a large main-floor commercial unit with full basement plus 5 high-end residential apartments above. Situated on a high-exposure corner lot offering excellent street presence. With over 7,000 sq ft of leased space with three on-site parking spaces, this a low-maintenance, cash flowing asset ideal for investors seeking a stable mixed-use property in a highly desirable urban location. Simply acquire and enjoy this fully upgraded, income-producing building. The seller is willing to provide a 75% Vendor Take Back (VTB) mortgage at 6.89% fully open for 2 years to qualified buyers. 3 parking spots are for the main floor commercial tenant which they made into a patio.
Property Facts
Lot & Parking
Utilities & Systems
Contact Joe, Doug & Randal for more information or to schedule a viewing.
MLS #: E12890406
Listed: March 17, 2026